Stéphane Gillard Négociateur
Télécharger la fiche

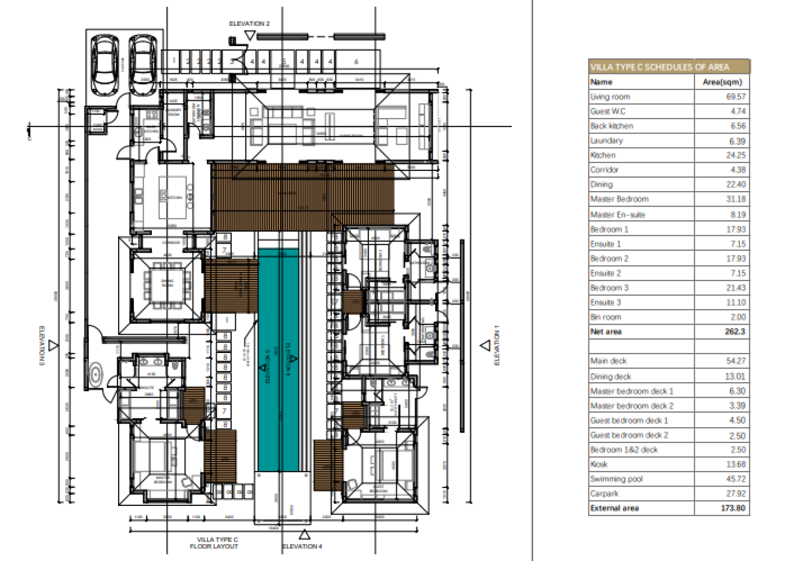
Maison 6 pièce(s) 4 chambre(s) 262.3 m²

Arsenal (20104)
57 916 000 Rs Référence 2305025GSG

A propos de ce bien

Située sur la côte Nord-Ouest de l’île, dans un cadre résidentiel agréable, cette villa haut de gamme se distingue par son architecture élégante d’inspiration balinaise.

De plain-pied, elle est implantée sur un terrain de 1 135,18 m² et a été pensée pour offrir un confort optimal ainsi qu’une belle harmonie avec son environnement. Elle comprend 4 chambres, toutes en suite, un jardin paysager et une piscine privative, avec une ouverture sur un parc arboré favorisant calme et intimité.

Le projet offre également une option de personnalisation, permettant de concevoir une villa et une piscine sur mesure selon tes préférences. Idéalement située à distance de marche de la plage, la villa bénéficie d’un agencement optimisé laissant davantage de place au jardin et aux espaces verts, sans vis-à-vis direct, garantissant ainsi une belle intimité dans un environnement naturel préservé.

L’ensemble du domaine se distingue par ses aménagements paysagers soignés, avec des parcs et jardins, ainsi que par des privilèges exclusifs, incluant un accès privilégié aux resorts 5 étoiles à proximité et des services dédiés aux propriétaires.

Accessible aux acheteurs étrangers, ce bien sera disponible fin 2027 et est proposé au prix de Rs 57 916 000.

Pour plus d’informations, contacte Hykone Ltd.

 

Caractéristiques de ce bien

  • Surface 262,30 m²
  • terrain 1 135,18 m²
  • séjour 69,57 m²
  • 4 chambre(s)
  • 4 salle(s) de bain
  • construit en 2026
  • cuisine américaine
  • 1 niveau(x)
  • vue Mer
  • terrasse

Diagnostics énergétiques

DPE
GES
DPE ANCIENNE VERSION

Informations financières

Prix de vente honoraires TTC inclus 57 916 000 Rs

Autour du bien

  • Commerces et santé
  • Loisirs
  • Ecoles
  • Transports
  • Pratique

Calcul des mensualités

* Champs obligatoires